PROYECTOS | RESIDENCIAL

Reforma vivienda unifamiliar

Shangrilá, Canelones

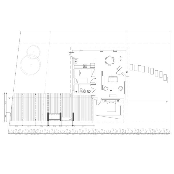
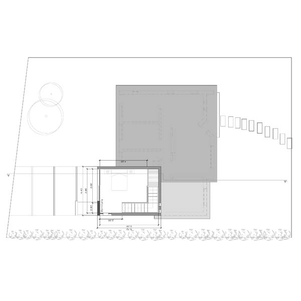
"Localizado en Shangrila, el proyecto consiste en la ampliación de la vivienda existente para incorporar un nuevo dormitorio y un espacio para barbacoa - parrillero.


Se decidió generar un volumen elevado que contenga la ampliación del dormitorio principal y debajo del mismo la generación del espacio barbacoa, espacio semicubierto que se vincula al patio.


Se propuso un sistema de construcción liviano, tipo steelframe con combinación de estructura metálica en perfilería normalizada."