PROYECTOS | RESIDENCIAL

Barbarcoa pentouse apartamento

Punta Carretas, Montevideo

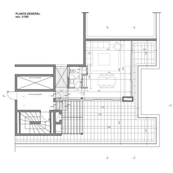
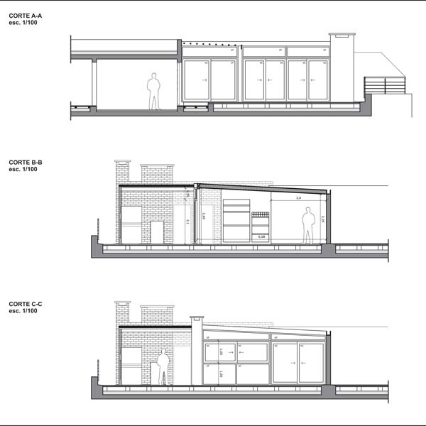
El proyecto de esta vivienda, localizada en el barrio de Carrasco, se centra en la intervención sobre la actual residencia del cliente, en la que por un lado se reformulan los espacios existentes y por otro se incorpora un nuevo nivel.


A partir de la incorporación de un patio central se busca dotar de mayor luminosidad y vinculo espacial a las dependencias de los dos niveles.


El programa se organiza de manera que se disponen en la planta baja los espacios que reciben las actividades públicas, mientras que las dependencias privadas se trasladan al nuevo nivel a construir en un nivel superior.